二手 125米 DP 2 在 汉堡, 汉堡州, 德国
二手
Doubleclick to zoom in
请联系卖家咨询
更多照片和设备细节。
规格参数
描述
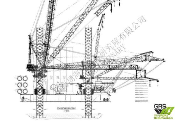
1600TON WTIV; 与所有者直接交易,船舶在A类船厂建造并所有权归属。 131m 桿长,DP2,8konts,变载荷5500吨,水深70m,桁架桿,130 POB;甲板起吊 175m,市场上最佳设计之一。
等级:CCS
符号:?CSA 自升式,海上风力涡轮机服务单元,起重机单元;起吊装置;PSPC(B);G-EP(GPR);?CSM AUT-0,DP-2;电力推进系统;
旗帜:中国
推进:
后部方位推力器:
- 额定功率 3 x 3000 kW
- FWT 方位推力器:
- 额定功率 2 x 2200 kW
- 速度 8结
Dynamic Positioning DP2
抬升系统:
驱动电动
普通抬升能力 250+10% 吨/齿轮轮齿
预载抬升能力 375+10% 吨/齿轮轮齿
抬升速度 0.8m/分钟
支腿行程速度 1.0m/分钟
起重机:
1600T LEC 重载起重机 1600
主起升 1600t @ 39.5m
1200t@50m;甲板起吊 175m
Whip 起升 450t @ 70m
300T LEC 重载起重机
主起升 300t @ 42m
Whip 起升 15t @ 89.5m
10t 可提供起重机
起升能力 10t @ 4.
查看更多
$158,000,000 USD
对这台机器有兴趣吗?
此卖家已被联系 13 时 在最后一周。





















