新 160 立方米/小时固定式混凝土搅拌站 在 伊兹密尔, 伊兹密尔省, 土耳其
新
Doubleclick to zoom in
请联系卖家咨询
更多照片和设备细节。
规格参数
描述
就高容量混凝土生产、效率和可靠性而言,固定式 160 - 固定式
混凝土搅拌站是任何规模项目的理想解决方案。这款固定式混凝土搅拌站
该设备的设计旨在实现最高性能,确保混凝土质量始终如一,同时满足严格的要求
不同的行业。无论您参与的是大型基础设施项目、商业建筑还是任何其他
需要大量混凝土产量的领域,Constmach 出售的固定式混凝土搅拌站旨在
取得优异的成绩。
固定式160的技术规格和优点
固定式 160 型号是混凝土搅拌站领域的一款强大机型,生产能力高达
每小时 160 立方米。这种高生产率使其适合需要连续
混凝土供应,且不影响质量。
该工厂的突出特点之一是其坚固的双轴搅拌机,可确保彻底均匀地混合
混凝土,从而获得最佳稠度。湿混凝土搅拌机容量为 4 立方米,非常适合
大批量项目。该工厂的设计还包括一个全自动控制系统,允许精确操作
并尽量减少人工干预,从而大大提高运营效率。
主要规格包括:
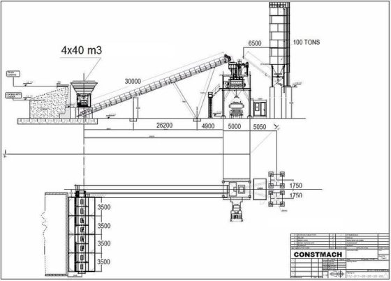
4 x 40 立方米的骨料斗容量和 6 立方米的骨料称重料斗容量确保
原材料的无缝供应。
配备骨料称重输送机(1,200 x 13,000 毫米)和转运输送机(1,200 x 32,000 毫米),确保
物料处理。
该工厂配备一个容量为 2,400 公斤的水泥称量斗和一个可容纳多达
至 1,200 升。此外,还配有容量为 100 升的添加剂称量料斗,确保精确混合
所有成分。
对于气动需求,该设备配备了一台 1,000 升空气压缩机,由 11 千瓦电机驱动,确保高效
整个行动期间的空气供应。
可以灵活地添加 100 至 500 吨的可选水泥筒仓,从而可以根据需要进行定制
项目要求,使其成为任何施工现场的多功能选择。
整个工厂的总电机功率为 245 千瓦,可由发电机供电,
350 kVA 的功率要求,使其节能并能适应各种现场条件。Stationary 160 需要
800 平方米的作业面积,可高效作业,足够紧凑,适合大多数施工现场,同时仍然
提供强劲的输出。
为什么选择 Constmach 满足您的混凝土配料需求?
选择 Constmach 的 160 固定式设备意味着选择质量、耐用性和无与伦比的客户支持。作为
作为行业领先制造商,Constmach 在提供设计先进的设备方面拥有良好的业绩记录
效率和可靠性。我们的固定式混凝土搅拌站采用优质材料建造,
承受恶劣的工作条件,确保长期生产力并减少停机时间。
通过与 Constmach 合作,您不仅投资于单一产品,而且投资于适合您所有需求的综合解决方案
建筑设备需求。我们制造各种设备,包括移动混凝土搅拌站、
混凝土砌块成型机、水泥筒仓、石材破碎机、破碎筛分设备、制砂设备
机器和沥青厂。我们丰富的产品组合使我们能够为您的项目提供量身定制的解决方案
要求,确保您拥有成功所需的一切。
凭借对创新和客户满意度的执着追求,Constmach 一直是业界值得信赖的品牌。探索
我们出售的固定式 160 固定式混凝土搅拌站的优势,并了解我们如何为您提供帮助
高效、精确地实现您的项目目标。
固定式 160 固定式混凝土搅拌站技术规格
工厂的主要价值
生产能力:160 立方米/小时
重量:66吨(不含水泥仓)
总电机功率:245 千瓦
发电机要求:350 kVA
搅拌器选项:双轴
所需经营面积:800 平方米
技术规格
骨料斗容量:4 x 40 m³
骨料称量斗容量:6 m³
骨料称重输送机尺寸:1,200 x 13,000 mm
骨料转运输送机尺寸:1,200 x 32,000 mm
骨料备用料斗容量:6 m³
搅拌机湿混凝土容量:4 m³
水泥称量斗容量:2,400 kg
水称量斗容量:1,200 升
添加剂称量斗容量:100升
空气压缩机:1,000 升,11 千瓦
水泥筒仓:可选,容量从 100 吨到 500 吨
控制类型:全自动
Services offered by seller
该卖方可能会提供融资
该卖家提供新机器
该卖家提供维修保养服务
该卖家提供备件
该卖家提供运输和物流
该卖家提供咨询服务
该卖方可以帮助您计划和执行整个项目
本卖家提供现场拆装









