新 100 立方米/小时干混混凝土搅拌站出售,保修 2 年 在 伊兹密尔, 伊兹密尔省, 土耳其
新
Doubleclick to zoom in
请联系卖家咨询
更多照片和设备细节。
规格参数
描述
在不断发展的建筑行业中,拥有合适的设备可以显著提高效率和项目
结果。如果您正在寻找一种坚固可靠的混凝土生产解决方案,那么 [DryMix 100 - 干式
混凝土搅拌站] 是一个很好的选择。作为顶级的 [干式混凝土搅拌站出售],它提供
无与伦比的性能和灵活性,满足各种项目需求。无论是大型基础设施项目还是
该工厂可进行大批量混凝土生产,确保无缝运行,并将停机时间降至最低。
无与伦比的技术规格
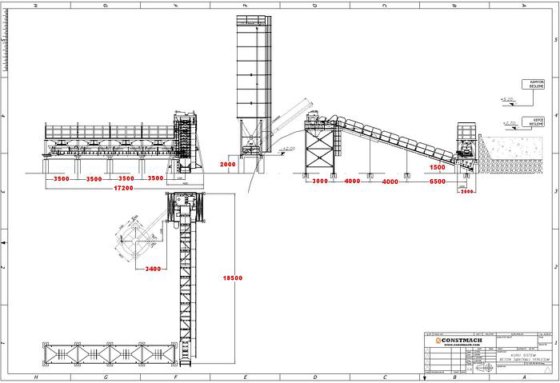
DryMix 100 型号专为提供高性能和高精度而设计。生产能力为 100 立方米/小时,
该配料厂旨在轻松处理要求苛刻的项目。它的总重量为 33 吨(不包括
水泥筒仓),需要 700 平方米的面积才能实现最佳设置。该设备由 75 千瓦电机系统驱动,
100 kVA 的发电机要求,确保持续高效的运行。
主要部件包括一个 4 x 20 立方米骨料斗,用于无缝骨料进料,以及一个 3 立方米骨料称重装置
料斗可进行精确测量。骨料输送系统采用 800 x 18,000 毫米输送机,优化了
物料运输。水泥称量斗容量为 1,200 公斤,而水称量斗可容纳
高达 600 升。对于化学添加剂,专用的 30 升料斗可确保准确计量。
该工厂的空气系统包括一个 300 升的空气压缩机和一个 5.5 千瓦的电机,提供可靠的气动控制。
此外,还可定制可选水泥筒仓,容量从 50 吨到 500 吨不等,以适应不同的
存储需求。全自动控制系统保证平稳、无差错的操作,减少了手动
干预并确保现场更高的效率。
为什么选择 Constmach?
在高品质混凝土搅拌站方面,Constmach 是行业领导者。选择
Constmach 的 DryMix 100 不仅能确保您投资一台耐用、高效的机器,还能保证
售后支持和专家技术协助,随时为您提供帮助。该工厂的坚固结构和先进的
技术降低维护成本,延长设备使用寿命,为您提供卓越的价值
投资。
除了 DryMix 100 之外,Constmach 还生产各种满足不同需求的建筑机械。我们的
产品系列包括固定式和移动式混凝土搅拌站、混凝土砌块成型机、水泥筒仓、
破碎筛分设备、制砂机和沥青厂。选择 Constmach,您就是在与
一个值得信赖的品牌,其所有产品都优先考虑质量、性能和客户满意度。
DryMix 100 干式混凝土搅拌站技术规格
工厂的主要价值
生产能力:100 立方米/小时
重量:33吨(不含水泥仓)
总电机功率:75千瓦
发电机要求:100 kVA
所需经营面积:700 平方米
技术规格
骨料斗容量:4 x 20 m³
骨料称量斗:3 m³
骨料称重输送机:800 x 13.000 毫米
骨料转运输送机:800 x 18,000 毫米
水泥称量斗:1.200 kg
水称量斗:600 升
添加剂称量料斗:30 升
空气压缩机:300 升,5.5 千瓦
水泥筒仓:容量可选50至500吨
控制类型:全自动
Services offered by seller
该卖方可能会提供融资
该卖家提供新机器
该卖家提供维修保养服务
该卖家提供备件
该卖家提供运输和物流
该卖家提供咨询服务
该卖方可以帮助您计划和执行整个项目
本卖家提供现场拆装












